Проектирование
Отопления и
Проектируем инженерные системы для загородных домов по всей России.
водоснабжение
Монтируем в Санкт-Петербурге и Ленинградской области
Оставить
заявку
Оставить
заявку
Оставить
заявку
В каждый проект закладываем точные расчеты и техническую документацию, которая гарантирует правильную работу системы на долгие годы.
За 12 лет работы мы создали
более 500 проектов отопления
и водоснабжения
  • Детальный тепловой расчет каждого помещения
  • Подбор оптимального шага укладки труб
  • Расчет гидравлики системы с учетом протяженности контуров
  • Комплект рабочих чертежей для монтажа
  • Техническое заключение с рекомендациями
Оставить заявку
Оставить заявку
  • Подбор котельного оборудования под ваши потребности
  • Варианты решений: эконом, стандарт, премиум
  • Схемы обвязки и автоматизации
  • 3D-визуализация будущей котельной
  • Готовое техническое задание для монтажа
Оставить заявку
Оставить заявку
  • Расчет теплопотерь с учетом климата
  • Подбор радиаторов, труб и запорной арматуры
  • Схемы скрытой разводки для эстетичного результата
  • Гидравлическая увязка всей системы
  • Готовые чертежи для монтажников
Оставить заявку
Оставить заявку
Оставить заявку
  • Схемы разводки с учетом удобства эксплуатации
  • Расчет диаметров труб для стабильного давления
  • Подбор качественных материалов и фитингов
  • Проектирование скрытых коммуникаций
  • Технические решения для экономии воды
Оставить заявку
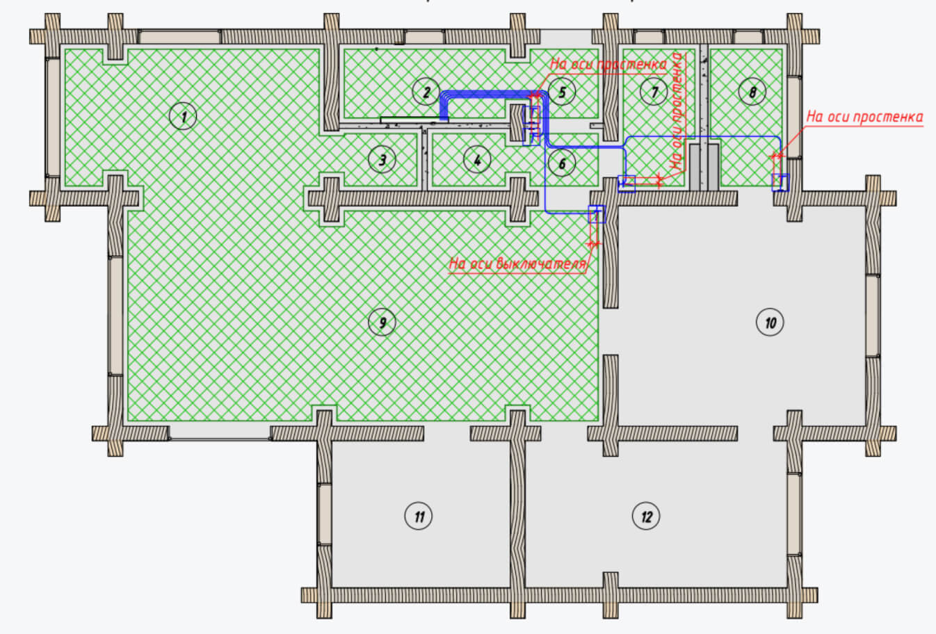
Проектируем в AUtiDesk Revit
BIM-моделирование
Создаем не просто чертежи, а «умную» 3D-модель вашего дома с инженерными системами:
  • Исключаем ошибки на этапе проектирования
  • Показываем, как будут выглядеть коммуникации
  • Автоматически формируем спецификации материалов
для кого проектируем
Монтажные бригады
Упростите общение с заказчиками, ускорьте выполнение работ, делайте качественные установки.
Архитекторы и дизайнеры
Быстро добавьте в свои услуги разделы отопления, водоснабжения и котельных.
Владельцы частных домов
Получите точный расчет бюджета, проконтролируйте подрядчиков или выполните монтаж самостоятельно по нашим чертежам.
Строительные компании
Снизьте требования к квалификации монтажников, сократите сроки и исключите переделки.
Почему нам доверяют?
Читать
Теплострой — это команда профессионалов, которая создает надежные инженерные системы в частных домах. Работаем под ключ, даем реальные гарантии.
Теплострой — монтаж отопления и водоснабжения под ключ в Санкт-Петербурге
Проектирование и монтаж инженерных систем в частных домах с 2013 года. Компания «Теплострой» работает исключительно под ключ — от расчетов до сервисного обслуживания. За 12 лет реализовали более 500 проектов в Санкт-Петербурге и Ленинградской области.
Почему выбирают Теплострой
Работаем под ключ
Не выполняем отдельные виды работ. Полная ответственность за результат — от проекта до гарантийного обслуживания.

Фокус на частные дома
12 лет специализируемся исключительно на загородных объектах. Знаем все особенности монтажа в домах любого типа.

Собственная сервисная служба
Обслуживаем все смонтированные объекты. Гарантия на работы — 2 года, на оборудование — до 25 лет.
География работ
Выполняем проекты по всей Ленинградской области:
  • Выборгский и Приозерский районы
  • Всеволожский и Гатчинский районы
  • Тосненский и Лужский районы
  • Волосовский и Кингисеппский районы
Стоимость работ под ключ
Теплый пол — от 1 800₽/м² Радиаторное отопление — от 1 500₽/м² Водоснабжение и канализация — от 800₽/м² Котельная — от 150 000₽
Точная стоимость зависит от площади дома, выбранного оборудования и сложности монтажа
Этапы работ Теплострой
  1. Выезд на объект — бесплатный замер и консультация
  2. Проектирование — создание 3D-модели в Autodesk Revit
  3. Согласование — утверждение проекта и сметы
  4. Монтаж — выполнение работ собственными силами
  5. Пуск системы — настройка и обучение эксплуатации
  6. Сервис — гарантийное и постгарантийное обслуживание
Услуги Теплострой под ключ
Системы отопления
  • Водяной теплый пол с укладкой в стяжку
  • Радиаторное отопление со скрытой разводкой
  • Комбинированные системы для максимального комфорта
  • Котельные с полной автоматизацией

Системы водоснабжения
  • Разводка холодного и горячего водоснабжения
  • Автономная канализация и очистные сооружения
  • Насосные станции и системы фильтрации
  • Рециркуляция ГВС для мгновенной подачи воды
Проверенные решения
BIM-проектирование Создаем точные 3D-модели систем, что исключает ошибки монтажа и позволяет увидеть результат до начала работ.

Энергоэффективность Системы Теплострой экономят до 40% затрат на отопление благодаря правильному проектированию и качественному оборудованию.

Скрытые коммуникации
Специализируемся на скрытой разводке трубопроводов для сохранения эстетики интерьера.
Оборудование и материалы
Работаем с ведущими производителями: Котлы: Baxi, Buderus, Viessmann Трубы: Rehau, Valtec, Uponor
Радиаторы: Royal Thermo, Global Автоматика: Honeywell, Grundfos
Получить расчет стоимости
Бесплатный выезд инженера для замеров и консультации по всей Ленинградской области.

Смета за 24 часа — подробный расчет с учетом всех особенностей вашего дома.
Фиксированная стоимость — цена в договоре не изменяется до окончания работ.
Проектирование
Наши работы
Посмотрите примеры реализованных проектов и убедитесь в качестве наших технических решений.
4
Ленинградская обл., Нов. Токсово
Система отопления.
Система водоснабжения.
Система внутренней канализации.
О проекте
Ленинградская обл., Нов. Токсово
Система отопления.
Система водоснабжения.
Тепломеханические решения
Ленинградская обл., Нов. Токсово
Тепломеханические решения
Ленинградская обл., Нов. Токсово
Тепломеханические решения.
Система внутренней канализации.
Система водоснабжения.
Система отопления.
Ленинградская обл., Нов. Токсово
Тепломеханические решения.
Система канализации.
Система водоснабжения.
Система отопления.
Проектирование
Наши работы
Посмотрите примеры реализованных проектов и убедитесь в качестве наших технических решений.
4
Ленинградская обл., Нов. Токсово
Система отопления.
Система водоснабжения.
Система внутренней канализации.
О проекте
Ленинградская обл., Нов. Токсово
Система внутренней канализации.
Система водоснабжения.
Система отопления.
О проекте
Ленинградская обл., Нов. Токсово
Тепломеханические решения
О проекте
Ленинградская обл., Нов. Токсово
Система водоснабжения.
Система внутренней канализации.
Тепломеханические решения.
Система отопления.
О проекте
Ленинградская обл., Нов. Токсово
Система водоснабжения.
Система внутренней канализации.
Тепломеханические решения.
Система отопления.
О проекте
Проект экономит ваши средства до 30%, позволяя точно рассчитать материалы и исключить переделки
Проектирование, продажа, монтаж, отопление, водоснабжение
Мы в соц. сетях
Разделы
Телефон для связи
ООО “ТеплоСтрой” © 2011-2024
Все права защищены.
Услуги
Проектирование
Монтаж
Проектирование
Монтаж
Написать нам в WhatsApp
График работы
Пн-Пт с 10:00 до 19:00
Написать нам на почту
Статьи (В разработке)
Made on
Tilda